
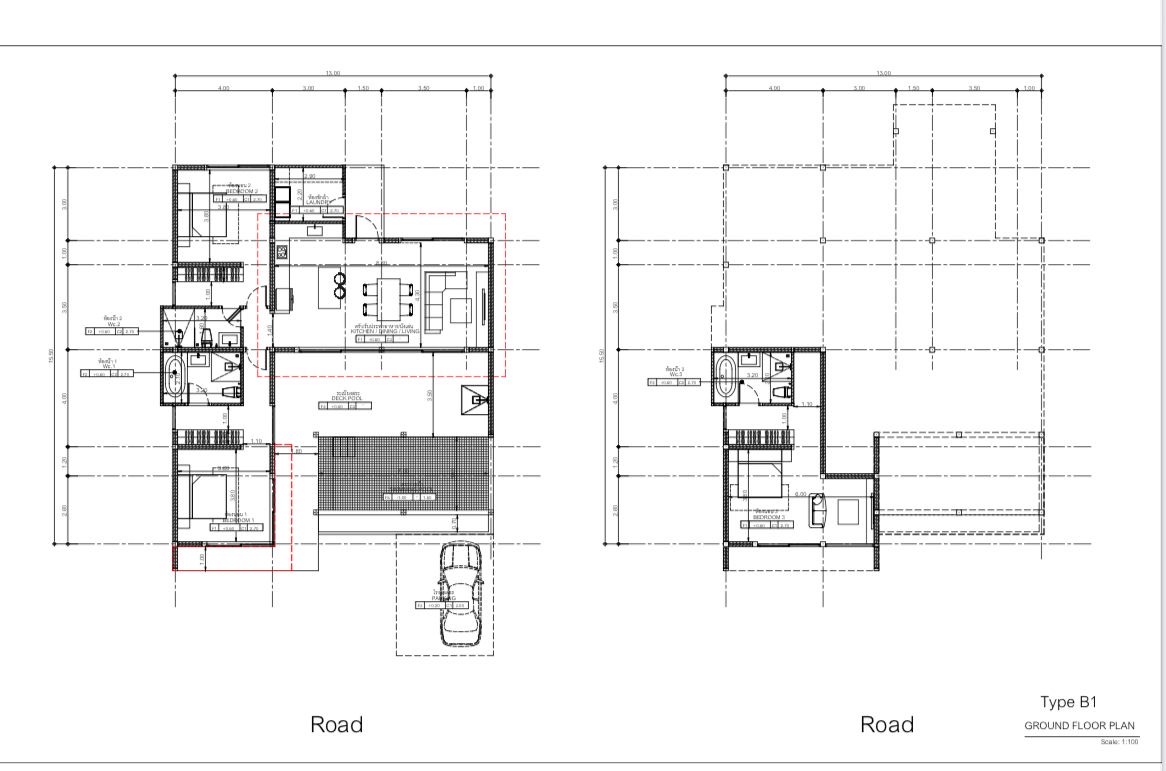
Otvorený priestor Kuchyňa Jedáleň Obývacia izba

3 kúpelne

Bazén

3 spálne

Vonkajšia
terasa

Kryté
parkovanie

Oplotenie
pozemku
Moderný tropický životný štýl pre tých, ktorí hľadajú istotu, zisk a pokoj pri mori.
Moderný tropický luxus s výhľadom na more. Predstavujeme vám nový projekt luxusných víl v exkluzívnej a pokojnej časti ostrova Koh Samui – Mae Nam.
Každá vila je navrhnutá podľa európskych štandardov s dôrazom na kvalitu, komfort a detail.
Každý detail je navrhnutý tak, aby vytváral harmóniu medzi moderným luxusom a pokojom prírody.
Výstavba je plánovaná na dokončenie koncom roka 2026.
💡 Cena zahŕňa, projektové povolenia, bazén, oplotenie, infraštruktúru a parkovanie.
Projekt sa nachádza v jednej z najvyhľadávanejších oblastí Mae Nam, len pár minút od pláže s jemným pieskom a pokojným morom.
V pešej dostupnosti nájdete tradičné thajské trhy, reštaurácie, a v blízkosti aj prestížne golfové ihrisko Santiburi Samui Country Club.
Výhody lokality:
Mae Nam – miesto, kde sa spája thajská autenticita, pokoj a investičná istota.
Projekt je propagovaný cez kombináciu:
💬 Získajte nielen nehnuteľnosť, ale partnerstvo – od prvej otázky až po správu prenájmu.
Budujeme dôveru cez otvorenú komunikáciu , osobný prístup u vas doma a reálne zábery zo stavby Každý klient má možnosť právnej kontroly, individuálneho prístupu a dohľadu nad procesom.
Sme vaším osobným zástupcom na ostrove – riešime všetko od zmlúv, cez výstavbu až po správu a prenájom.
Vy investujete – my sa staráme o všetko ostatné.
Každý investor sa stáva súčasťou našej komunity. Pomáhame so správou, údržbou aj ďalšími investičnými možnosťami.
Vysoký dopyt po prenájme a rast cien nehnuteľností zaručujú, že vaša vila v Mae Nam nie je len krásny domov, ale aj stabilný pasívny príjem.
📞 Zaujala vás táto príležitosť?
Kontaktujte ma pre detailné pôdorysy, investičnú kalkuláciu (ROI) a dostupnosť jednotlivých víl.
Váš tropický domov čaká – s výhľadom, aký sa nepredáva každý deň.
Neváhajte nás kontaktovať v prípade otázok. Veľmi radi Vám poradíme s výberom našich nehnuteľností.